Заступник міського голови Львова з містобудування Любомир Зубач оприлюднив плани Сокільницької сільської ради щодо забудови території площею 72,2 га, що безпосередньо межує з Міжнародним аеропортом "Львів" імені Данила Галицького.
Про це пише portal.lviv.ua.
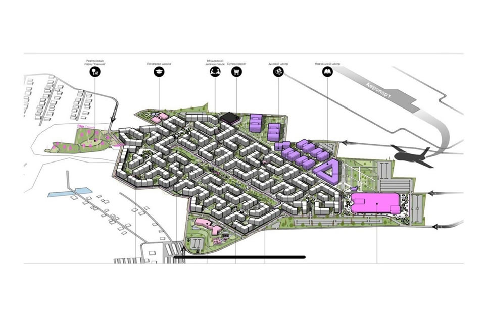
На цій ділянці планується спорудження житлових кварталів загальною площею 847 495 м². За словами Зубача, фактичні наміри забудовників перевищують показники, передбачені оновленим Генпланом Львова. Посадовець зазначив, що забудовники хочуть "всадити" понад мільйон квадратних метрів, переважно житла, і це лише частина масштабних проєктів у Сокільниках.
У міській раді наголошують, що така щільна забудова приаеродромних територій може обмежити роботу львівського аеропорту та призвести до проблем з транспортною інфраструктурою, навантаженням на мережі та відведенням дощових вод. Місцеві мешканці також побоюються перенаселення та погіршення доступу до сервісів і транспортних шляхів.
Наприкінці 2024 року Львівська ОВА погодила оновлений генеральний план Сокільників, який передбачає масштабну житлову забудову нових територій. Зокрема, під будівництво житла визначено 136 га землі, що безпосередньо прилягають до злітної смуги аеропорту.
План передбачає як індивідуальну, так і багатоповерхову забудову. Загалом має з'явитися 14 житлових кварталів, у яких зведуть 1873 котеджі та понад 13 тисяч квартир.
Крім того, документ включає створення індустріального парку площею 27,6 га, частина якого займе територію сусіднього села Басівка. Тут планують спорудити комплекс із офісами, виробничими приміщеннями, складами та іншою промисловою інфраструктурою.
Оновлений Генплан також передбачає суттєве зменшення санітарно-захисних зон навколо підприємств. Один із нових кварталів — К-7 — розмістили безпосередньо поруч із промзоною, а дитячий садок планують збудувати у безпосередній близькості до виробничих приміщень.
Підприємці критикували запропоновані зміни під час громадських слухань, але їхні зауваження не були враховані. Через це бізнес звернувся до Архітектурно-містобудівної ради при ЛОДА.
Головна архітекторка Львівщини Олена Василько повідомила, що питання розглядали на засіданні містобудівної ради 20 грудня. Участь брали розробники Генплану та представники місцевої промзони. Частину зауважень уже враховано, але рада виявила й додаткові.
